Комплектация:
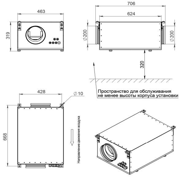
Технические характеристики Breezart 600 Lite-FC-SB
Приточная установка Breezart 600 Lite выпускается на производственных мощностях Breezart и представляет собой упрощенную версию приточной установки Breezart 600 Lux.
Она предназначена для создания простой системы вентиляции квартир, офисов и загородных домов, где не требуется зональная VAV-система вентиляции, увлажнение воздуха и удаленное управление приточной установкой.
Оборудование Breezart имеет компактные габариты, встроенную автоматику и пульт управления с цветным сенсорным дисплеем.
Приточная установка полностью укомплектована и готова к монтажу.
Для контроля загрязненности фильтра можно использовать дополнительный датчик дифференциального давления (опция). В случае его отсутствия, о необходимости замены фильтра, напомнит встроенный в автоматику таймер.
| 600 Lite SB | 600 Lux | |
| Автоматика | JetLogic | JetLogic |
| Пульт ДУ | JLV135-Lite Сенсорный цветной |
JLV135 Сенсорный цветной |
![]() |
![]() |
|
| Сетевой интерфейс | Нет | Wi-Fi |
| Удаленное управление | Нет | WEB-интерфейс |
| Подключение к умному дому | Нет | MODBUS RTU | TCP |
| Производительность | 600 м3/час | 600 м3/час |
| Регулировка производительности | 10 ступеней | 10 ступеней |
| Диапазон регулирования | 20 - 100% | 20 - 100% |
| Поддержка VAV-системы | Нет | Есть |
| Управление доп. оборудованием | Нет | Увлажнитель, VAV, КАБ |
| Управление вытяжным вентилятором | Есть | Есть |
| Датчик загрязненности фильтра | Опция (аналоговый) | Есть (цифровой) |
| Кол-во сценариев | 4 | 8 |
| Вентилятор* | Вентилятор EC | Вентилятор EC |
| Мощность нагревателя | 1,8 | 3,6 | 5,4 кВт | 3,4 | 5 | 7,5 кВт |
| Эл. питание | 220Вх1ф / 380Вх3ф (автоопределение) | Универсальное питание 220В / 380В |
| Воздушный клапан с эл. приводом | опция | есть |
| Основной фильтр | G4 / M5 (опция) | G4 / M5 (опция) |
| Дополнительный фильтр | F7/F9 / Carbon (опция) | нет |
— уменьшают энергопотребление за счет высокого КПД, высокого cos (φ) и низкой реактивной составляющей, дающей лишнюю нагрузку на электрическую сеть
— более высокая производительность ЕС-вентиляторов при меньших габаритах и потреблении электроэнергии
— большой срок бесперебойной работы благодаря бесщёточному коммутированию
Система цифровой автоматики JetLogic. Система автоматики встроена в корпус вентустановки, комплектуется всеми необходимыми для ее работы датчиками.
Пульт JLV135-Lite выполнен в накладном корпусе и имеет цветной сенсорный экран емкостного типа. Диагональ экрана 3.5“, разрешение 480 х 320 точек, без Wi-Fi и без возможности удаленного управления.
Пульт JLV135-Lite входит в стандартную комплектацию.
Преимущества перед обычными ТЭНовыми нагревателями:
*Используется не во всех установках, см. техническую документацию.
Межкорпусное пространство заполнено специальным термо- и шумоизоляционным материалом на основе минерального волокна высокой плотностью 100 кг/м2, что позволяет достичь высокого эффекта шумоподавления.
Производитель сохраняет за собой право заменять компоненты или детали в продукте без предварительного уведомления потребителя.

|
Нагрев воздуха
-
автоматическое поддержание заданной температуры воздуха в холодный
период года в диапазоне от +18°С до +40°С, для
установок с водяным нагревом, и от +5°С до +35°С, для
установок с электрическим нагревателем.
|
|
![]() |
Регулировка скорости
вентилятора - 3-ступенчатая регулировка скорости вентилятора,
с возможностью
настройки минимальных и максимальных значений со штатного пульта.
|
|
![]() |
Система
защиты от
перегрева калорифера - состоит из трех уровней. В случае
снижения температуры калорифера, при срабатывании первых двух уровней
защиты, работоспособность вентустановки восстанавливается автоматически.
|
|
![]() |
Контроль загрязненности
воздушного
фильтра - датчик давления измеряет степень загрязненности фильтра (опция).
|
|
![]() |
Недельный таймер
- для программирования режима работы и включения / отключения
вентустановки по определенным дням недели в заданное время.
|
|
![]() |
«Комфорт»
- автоматическое снижение производительности вентилятора при недостатке
мощности нагревателя в холодный период года.
|
|
![]() |
«Мягкий старт» - При включении вентиляционной установки, находящейся в режиме нагрева воздуха, сначала происходит прогрев калорифера – это предотвращает попадание в помещение холодного воздуха. Процесс занимает 30–90 секунд и индицируется надписью «Включение...» на дисплее. Вентилятор в процессе прогрева работает на минимальной скорости (электрический калорифер) или выключен (водяной калорифер).
|
|
![]() |
«Рестарт»
- при сбое и восстановлении питания приточная установка начнет работать
в том же режиме, в котором она находилась до отключения питания.
|
|
![]() |
Управление
вытяжной установкой - осуществляется по
сигналу ВКЛ/ВЫКЛ.
|
Пульт обеспечивает базовое управление и настройку, не требует дополнительного оборудования. Автоматика без Wi-Fi и без возможности удаленного управления.
На пульте управления, в главном меню, в разделе «Фильтр» отображается фактическая загрязненность воздушного фильтра, определяемая датчиком перепада давления:
Если загрязненность фильтра превышает 75%, то на главной странице появляется предупреждение о том, что фильтр скоро нужно будет заменить. Степень загрязненности можно вывести на главный экран в поле Дополнительного датчика.
Второй параметр – падение давления на фильтре, измеренное датчиком (зависит от загрязненности фильтра и скорости вентилятора). Третий параметр – время наработки воздушного фильтра, которое рассчитывается исходя из времени работы вентустановки и скорости вентилятора (на низких скоростях вентилятора загрязнение происходит медленнее). Это справочный параметр, который на работу вентустановки не влияет. При замене фильтра рекомендуется инициировать счетчик, нажав кнопку «Сброс наработки».
Для ПВУ может дополнительно отображаться информация о вытяжном фильтре.
Точное измерение загрязненности возможно только на высоких скоростях вентилятора, поскольку при малой скорости значение загрязненности программно корректируется и может быть не точным. По этой причине рекомендуется периодически, не реже одного раза в 2 месяца, тестировать фильтр на 8…10 скорости вентилятора, если в процессе обычной эксплуатации вентустановка не работает на таких скоростях. Для этого нажмите на кнопку «Тест фильтра на 8 скорости» – вентилятор переключиться на 8 скорость. Если загрязненность будет выше 75%, фильтр рекомендуется заменить в ближайшее время.
Обратите внимание: эта кнопка будет неактивна, если вентустановка уже работает на 8…10 скорости, а также если управление скоростью выполняется автоматически (VAV система, управление скоростью от датчика СО2 и пр.).


Внимание! Замена фильтра должна производиться только при отключенном электропитании (отключение защитным автоматом в щите электропитания).
Для замены фильтра:
После замены фильтра необходимо выполнить процедуру инициализации нового фильтра, которая выполняет следующие действия:
Последовательность действий:
Вентиляционные установки 350 – 550 типоразмера серий Lux, Lite и Extra допускается размещать:
Приточные установки с электрическим калорифером и вытяжные установки 600 и 1000 типоразмера, приточные установки с водяным калорифером 550 и 1000 типоразмеров, 2000 Lux PTC, 2000 Aqua и 2000 Extra допускается размещать:
Приточно-вытяжные установки с энтальпийным рекуператором допускается размещать:
Увлажнители воздуха 550 и 1000 типоразмеров допускается размещать:
Вентиляционные установки и увлажнители воздуха от 2000 типоразмера (кроме 2000 Lux PTC, 2000 Aqua и 2000 Extra) допускается размещать и крепить только в соответствии с указанным в маркировке исполнением:
Если вентустановка расположена в неотапливаемом помещении, то она должна работать в непрерывном режиме. Если в процессе эксплуатации возможна ее остановка, то рекомендуется установить в воздуховоды воздухонепроницаемые клапаны, которые предотвратят попадание теплого влажного воздуха из обслуживаемых помещений внутрь вентустановки. Отсутствие клапанов приведет к риску конденсации влаги внутри вентустановки во время ее остановки. Если вентустановка смонтирована, но не введена в эксплуатацию, то воздуховоды должны быть отсоединены от нее и закрыты.
Пульт управления имеет защиту IP40, поэтому его необходимо размещать в закрытом сухом помещении без конденсации влаги. Размещать пульт управления в ванных, санузлах и других влажных зонах запрещено. Ограничения на размещение остального оборудования указаны в паспорте оборудования.
Все модели приточных и вытяжных установок могут быть выполнены в гигиеническом исполнении (опция HYG) для обслуживания объектов здравоохранения, фармацевтической промышленности, электронной индустрии и чистых помещений.
Особенности таких вентустановок:
Системы гигиенической подготовки воздуха требуют дополнительных решений по автоматизации, например:
Для профилактической замены фильтра, обслуживания вентустановки и системы автоматики необходимо обеспечить свободный доступ к сервисным люкам и клеммной коробке, а также возможность полного демонтажа вентустановки в случае ее неисправности. Расстояние для обслуживания должно быть не менее ширины или высоты вентустановки, в зависимости от расположения сервисных люков, по всей их длине. Дополнительно необходимо предусмотреть беспрепятственный доступ к навесному оборудованию, такому как смесительные узлы, электроприводы и т.п.
Общие технические характеристики вентиляционных установок с электрическим калорифером и без калорифера:
Общие технические характеристики вентиляционных установок с водяным калорифером:



Технические характеристики Breezart 600 Lite-FC-SB
Инструкция по эксплуатации вентустановок Breezart Lite
Дополнительные фильтры тонкой очистки Breezart
Описание оборудования Breezart
Вентиляционные установки
для квартир и коттеджей
Вентиляционные установки
и осушители воздуха
для бассейнов
Увлажнители воздуха для систем вентиляции
Испарительные увлажнители воздуха Breezart
Объекты с оборудованием Breezart
предоставляется по запросу tech@breezart.shop
Опросный лист для подбора вентиляции
Опросный лист для подбора осушителя
Опросный лист для подбора увлажнителя
Техническое задание на проектирование
Листовка. Удаленное управление вентиляционными установками
Листовка. VAV-система зональной вентиляции
WEB-интерфейс. Инструкция пользователя
Автоматика для комплексных систем вентиляции
Инструкция по эксплуатации вентустановок Breezart
Инструкция по эксплуатации вентустановок Breezart Lite
Инструкция по эксплуатации ПВУ Breezart серии Pool
Инструкция по эксплуатации увлажнителей воздуха Breezart
Инструкция по настройке увлажнителей Breezart
Требования к монтажу оборудования
Схемы подключения оборудования Breezart
Параметры теплообменников и смесительных узлов Breezart
Кабели для подключения оборудования
Подключение увлажнителя Carel / Breezart
Подключение VAV-системы Breezart
Подключение вытяжной установки
Подключение дополнительных пультов управления
Удаленное управление через модуль PL307
Регламент обслуживания вентиляционных установок Breezart
Типовая схема подключения для приточных установок Breezart 350/550 Lite
Типовая схема подключения для приточных установок Breezart 400/600 Lite
Типовая схема подключения для приточной установки Breezart 550 LUX на контроллере JL204С7
Типовая схема подключения для приточной установки Breezart 1000 LUX PTC на контроллере JL204С7
Типовая схема для приточной установки Breezart 1000 Lux F РТС на контроллере JL204С7
Типовая схема для приточной установки Breezart 1000 Mix РТС на контроллере JL204С7
Типовые схемы для приточной установки Breezart 2000 Lux РТС на контроллере JL205
Типовая схема для приточных установок Breezart 2000 – 6000 Lux на контроллере JL205
Типовая схема подключения для приточных установок Breezart серии AQUA (F) на контроллере JL205
Типовые схемы для ПВУ Breezart Aqua RP на контроллере JL206
Типовая схема для ПВУ Breezart 1000 Lux RP на контроллере JL206
Типовая схема для ПВУ Breezart 2000 – 6000 Lux RP на контроллере JL206
Прошивки пультов TPD-283U-H и JLV135 для вентустановок Breezart серий Lux, Aqua и Mix
Карта регистров Modbus - JL205 (кроме серии POOL)
Карта регистров Modbus - JL204C5 (кроме серии POOL)
Карта регистров Modbus - JL204C2 (кроме серии POOL)
Карта регистров Modbus - JL204C7 (кроме серии POOL)