Характеристики
Функции
Состав решения:
** Указана розничная стоимость оборудования Breezart. Стоимость материалов (воздуховоды, вентиляционные решетки, комплектующие, крепеж и т.п.) и монтажных, пуско-наладочных работ, оценочно: 50% - 80% от стоимости оборудования.
Монтаж оборудования выполнен компанией:
| «РУСКОМ» | +7 (495) 510 01 50 |
|
b2b_msk@mail.ru |
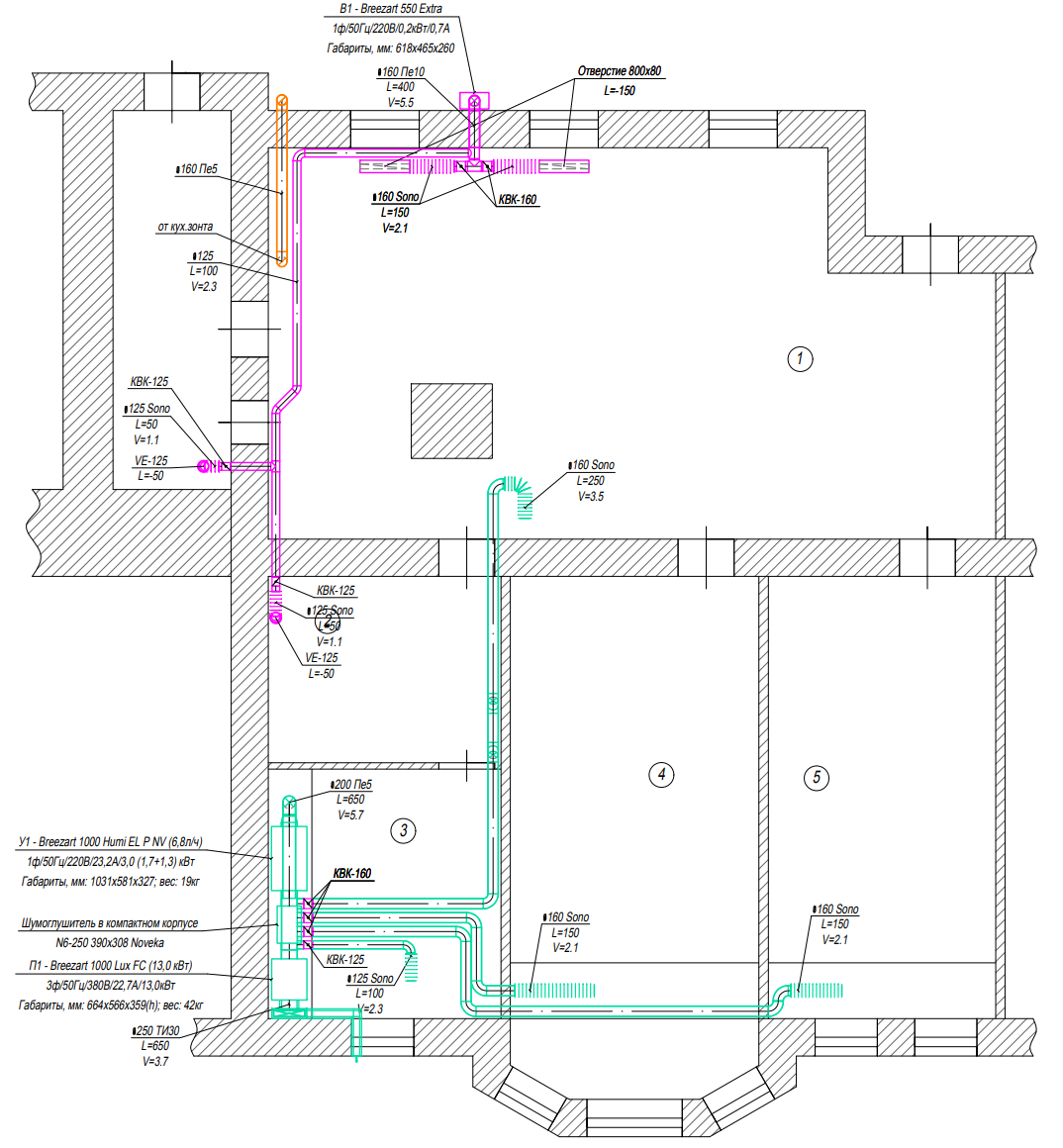
Для вентиляции квартиры площадью 120 м2 используется приточная установка Breezart 1000 LUX, подающая воздух в каждое помещение с использованием скрытых решеток.
Ввиду нахождения объекта в исторической части г. Москва, забор воздуха осуществляется не с фасада здания, а через оконный проем.
Для поддержания необходимого уровня влажности установлен адиабатический увлажнитель воздуха Breezart 1000 HUMI EL P.
Также смонтирована скрытая система охлаждения воздуха на основе канальных кондиционеров.
Удаление воздуха из помещений происходит через вытяжки с помощью вытяжной установки Breezart 550 Extra.
В решении может быть использована дополнительная очистка воздуха с помощью фильтра класса F7/F9, который задерживает 80 — 90% атмосферной пыли, пух, среднюю и мелкую пыль, пыльцу растений, споры грибов, плесени и прочие мелкие загрязнители, в том числе мелкие частицы размером более 1 мкм. Применяется в качестве второй ступени фильтрации воздуха.
| EN 779:2012 | ISO 16890 - Средняя эффективность | ||
| Классы фильтров | ePM1 | ePM2,5 | ePM10 |
| F7 | 40%-65% | 65%-75% | 80%-90% |
| F9 | 80%-90% | 85%-95% | 90%-100% |
| Примерное соответствие стандартов EN779 и ISO 16890. | |||
Оборудования размещено в отдельном помещении, что исключает проникновение шума в жилые помещения и упрощает доступ для обслуживания.
3-х комнатная квартира в историческом центре г. Москва. Дом начала XX века. Квартира находится на стадии чернового ремонта. Проживать планирует семья из 4-х человек. Площадь квартиры - 120 м2.
| Монтаж оборудования выполнен компанией: | «РУСКОМ» | +7 (495) 510 01 50 |
|
b2b_msk@mail.ru |


Мы знаем, насколько сложна и ответственна работа по подбору систем вентиляции, увлажнения, осушения. В ней надо учесть множество факторов и быть уверенным в качестве и надежности применяемого оборудования и материалов. Именно такую продукцию производит и поставляет Breezart, обеспечивая клиентов квалифицированной технической поддержкой.
Возможен самостоятельный выбор оборудования: Программа подбора вентустановок Breezart.
Расчет типового решения - приточная часть
Расчет типового решения - вытяжная часть
Преимущества перед обычными ТЭНовыми нагревателями:
*Используется не во всех установках, см. техническую документацию.
— уменьшают энергопотребление за счет высокого КПД, высокого cos (φ) и низкой реактивной составляющей, дающей лишнюю нагрузку на электрическую сеть
— более высокая производительность ЕС-вентиляторов при меньших габаритах и потреблении электроэнергии
— большой срок бесперебойной работы благодаря бесщёточному коммутированию
Система цифровой автоматики JetLogic, выполненная на базе
микропроцессора ARM Cortex-M3 с возможностью подключения к системе "УМНЫЙ ДОМ".
Система автоматики встроена
в корпус вентустановки, комплектуется всеми необходимыми для ее работы датчиками, имеет возможность подключения и управления канальным увлажнителем и вытяжными вентиляторами.
Вентустановками Breezart можно управлять через интернет или по локальной сети с помощью любого современного браузера (Chrome, Firefox, IE).
Доступны базовые функции:
В результате применения VAV-системы мы получаем значительную экономию и 3-х кратное уменьшение затрат на нагрев воздуха, с сохранением уровня комфорта и объема подаваемого воздуха в зоны пребывания людей.
Пульт JLV135 выполнен в накладном корпусе и имеет цветной сенсорный экран емкостного типа. Диагональ экрана 3.5“, разрешение 480 х 320 точек, встроенный Wi-Fi модуль.
Пульт JLV135 входит в стандартную комплектацию приточных и приточно-вытяжных установок Breezart*.
Возможно отсоединение клапана от вентустановки с переносом к точке воздухозабора: при отключенной вентиляции холодный воздух не будет проникать в воздуховоды.
Межкорпусное пространство заполнено специальным термо- и шумоизоляционным материалом на основе минерального волокна. Металлический корпус имеет полимерное покрытие, обладающее высокой антикоррозионной устойчивостью. В каркасных вентустановках применяются сэндвич-панели ППУ Zn-Polyester.
В офисе Breezart Вы можете посмотреть и попробовать в действии VAV-систему Breezart, а также познакомиться с возможностями автоматики Jet Logic.
Вы сможете ознакомиться с конструкцией и техническими характеристиками следующих моделей:
паровой увлажнитель Breezart 03 HUMI VP;
адиабатический увлажнитель Breezart 550 HUMI EL P bps;
приточно-вытяжная установка Breezart 900 LUX RE с рекуператором;
приточная установка Breezart 300 LUX SB;
приточная установка Breezart 500 LUX SB;
Офис Breezart работает с юридическими лицами. Если Вам требуется консультация, обязательно запишитесь и назначьте удобное для Вас время, в рабочие часы офиса!
Преимущества перед обычными ТЭНовыми нагревателями:
*Используется не во всех установках, см. техническую документацию.
— уменьшают энергопотребление за счет высокого КПД, высокого cos (φ) и низкой реактивной составляющей, дающей лишнюю нагрузку на электрическую сеть
— более высокая производительность ЕС-вентиляторов при меньших габаритах и потреблении электроэнергии
— большой срок бесперебойной работы благодаря бесщёточному коммутированию
Система цифровой автоматики JetLogic, выполненная на базе
микропроцессора ARM Cortex-M3 с возможностью подключения к системе "УМНЫЙ ДОМ".
Система автоматики встроена
в корпус вентустановки, комплектуется всеми необходимыми для ее работы датчиками, имеет возможность подключения и управления канальным увлажнителем и вытяжными вентиляторами.
Вентустановками Breezart можно управлять через интернет или по локальной сети с помощью любого современного браузера (Chrome, Firefox, IE).
Доступны базовые функции:
В результате применения VAV-системы мы получаем значительную экономию и 3-х кратное уменьшение затрат на нагрев воздуха, с сохранением уровня комфорта и объема подаваемого воздуха в зоны пребывания людей.
Пульт JLV135 выполнен в накладном корпусе и имеет цветной сенсорный экран емкостного типа. Диагональ экрана 3.5“, разрешение 480 х 320 точек, встроенный Wi-Fi модуль.
Пульт JLV135 входит в стандартную комплектацию приточных и приточно-вытяжных установок Breezart*.
Возможно отсоединение клапана от вентустановки с переносом к точке воздухозабора: при отключенной вентиляции холодный воздух не будет проникать в воздуховоды.
Межкорпусное пространство заполнено специальным термо- и шумоизоляционным материалом на основе минерального волокна. Металлический корпус имеет полимерное покрытие, обладающее высокой антикоррозионной устойчивостью. В каркасных вентустановках применяются сэндвич-панели ППУ Zn-Polyester.

|
Нагрев воздуха
-
автоматическое поддержание заданной температуры воздуха в холодный
период года в диапазоне от +18°С до +40°С, для
установок с водяным нагревом, и от +5°С до +35°С, для
установок с электрическим нагревателем.
|
|
![]() |
Удаленное управление через web-интерфейс - вентустановками Breezart можно управлять через интернет или по локальной сети с помощью любого современного браузера (Chrome, Firefox, IE).
|
|
![]() |
Управление вентилятором - встроенная автоматика позволяет контролировать и управлять вентиляционной установкой Breezart с помощью датчика СО2 или VOC. Вентилятор
будет поддерживать заданный пользователем уровень измеряемого параметра.
|
|
![]() |
Регулировка скорости
вентилятора -
10-ступенчатая регулировка скорости вентилятора, с возможностью
настройки минимальных и максимальных значений со штатного пульта.
|
|
![]() |
Система
защиты от
перегрева калорифера - состоит из трех уровней. В случае
снижения температуры калорифера, при срабатывании первых двух уровней
защиты, работоспособность вентустановки восстанавливается автоматически.
|
|
![]() |
Контроль загрязненности
воздушного
фильтра - цифровой датчик давления, расположенный в блоке
автоматики, измеряет степень загрязненности фильтра.
|
|
![]() |
Дополнительный фильтр тонкой очистки - модели 550 Lux / 550 Lux SB и 1000 Lux PTC могут опционально оснащаться двумя фильтрами: грубой очистки класса G4 или M5 и тонкой очистки класса F7 / F9 / Carbon (опция)
|
|
![]() |
Часы
реального времени (при отключении питания время не
сбрасывается).
|
|
![]() |
Недельный таймер
- для программирования режима работы и включения / отключения
вентустановки по определенным дням недели в заданное время.
|
|
![]() |
«Комфорт»
- автоматическое снижение производительности вентилятора при недостатке
мощности нагревателя в холодный период года.
|
|
![]() |
«Рестарт»
- при сбое и восстановлении питания приточная установка начнет работать
в том же режиме, в котором она находилась до отключения питания.
|
|
![]() |
Каскадный регулятор
- позволяет поддерживать заданную температуру или влажность по
дополнительному датчику в помещении или вытяжном канале.
|
|
![]() |
VAV
система - система
зонального регулирования, с переменным расходом воздуха. В совокупности
с таймерами, позволяет достичь высокой экономии, не подавать воздух в
не обслуживаемые помещения, и соответственно не тратить энергию на его
нагрев. Дополнительно предоставляет возможность уменьшить требуемую
производительность и типоразмер оборудования.
|
|
![]() |
Умный дом -
возможно подключение к системе «Умный дом» или
компьютеру, при помощи встроенного в автоматику порта Modbus.
|
|
![]() |
Управление увлажнителем
Breezart - управление и настройка параметров увлажнителя
Breezart с пульта приточной установки.
|
|
![]() |
Управление
вытяжной установкой - осуществляется одновременное управление
приточной и вытяжной установкой Breezart со штатного пульта.
|
|
![]() |
Управление увлажнителем Carel - управление серией UE (UER) осуществляется по цифровому интерфейсу MODBUS. Другие серии увлажнителей Carel и прочих производителей управляются сигналом 0-10В. Требуемое значение заданной влажности устанавливается с пульта приточной установки.
|
Пульт JLV135 выполнен в накладном корпусе и имеет цветной сенсорный экран емкостного типа. Диагональ экрана 3.5“, разрешение 480 х 320 точек, встроенный Wi-Fi модуль.
Пульт имеет встроенные датчики температуры, влажности и атмосферного давления. Датчики температуры и влажности могут использоваться для поддержания заданных параметров воздуха в помещении. Для удаленного управления через WEB-интерфейс или VNC и обновления прошивки пульта используется связь по Wi-Fi.
При подключении нескольких пультов через модуль PL303 все пульты должны быть одного типа.
При подключении пультов к разным портам контроллера (по одному пульту на порт) можно использовать любые пульты, например, к P0 подключить TPD-283U-H, а к P1 – JLV135.
Панель управления JLV135 может использоваться для управления различными устройствами, например такими как приточно-вытяжные установки, или как элемент управления в системе «умный дом». Возможности панели определяются её прошивкой.
Вентустановками Breezart можно управлять через интернет с помощью браузера Google Chrome или Firefox. К роутеру система подключается кабелем типа «витая пара» (кроме пульта JLV135 – он подключается по Wi-Fi), фиксированный внешний IP не нужен, получение адреса в локальной сети происходит по DHCP от роутера.
Для управления вентустановками комфортной вентиляции серий Lux, Aqua или Mix требуется:
Для опции WEB-PL также потребуется свободный порт Modbus на контроллере.
На пульте в разделе «Настройка» задается пароль и запрет / разрешение для удаленного управления: если доступ разрешен, то к вентустановке можно подключиться через web-interface.
Опции WEB-PL и DS не совместимы с увлажнителями и устаревшими вентустановками (с прошивкой пульта до 7.09).
Через web интерфейс можно управлять всеми базовыми функциями, доступно:
Для вентустановок, расположенных на одном объекте, возможно управление несколькими вентустановками с помощью одного модуля PL307 (опция WEB-PL-Lite).
Для объектов, где нет кабельного интернета, можно использовать опцию WEB-GSM или WEB-GDISP. Они реализованы на базе модуля PL307-GSM, поддерживающем выход в интернет и диспетчеризацию через SIM карту. При заказе опции WEB-GDISP сервисная служба дополнительно настраивает список событий (аварий, предупреждений) при возникновении которых происходит отправка e-mail и/или SMS.
Удаленное управление через web-интерфейс не поддерживает интеграцию с системой «Умный дом».
Виртуальные вентустановки для web интерфейса
Для демонстрации удаленного управления через web интерфейс созданы три виртуальные вентустановки: они эмулируются сервером и к ним может подключиться любой желающий. Необходимо отметить, что виртуальные вентустановки созданы только для демонстрации возможностей web интерфейса, их реакции на изменения уставок и другие управляющие воздействия могут отличаться от реакции реальных моделей. Данные о виртуальных моделях вводятся в интерфейс как обычно. Для упрощения ввода можно использовать ссылки с UID этих вентустановок: при переходе по такой ссылке данные автоматически сохраняются в интерфейсе (в слоты 3, 4 и 5), вам нужно будет только ввести пароль 12345678.
Модель 550 Lux с VAV и увлажнителем воздуха, зимний период
v01-breezart-virtual
пароль 12345678
DCV-система: cистема адаптивной вентиляции (DCV) с переменным расходом воздуха (VAV), предусматривающий возможность глубокого регулирования воздухообмена по отдельным зонам и во времени в зависимости от фактической заполняемости помещений людьми.
Если в системе есть датчик СО2 или VOC, то вентилятор может поддерживать заданный пользователем уровень измеряемого параметра (доступно с версии 7.11.06).
Внимание! Предварительно убедитесь, что датчик настроен корректно и на главном экране в поле дополнительного датчика отображаются его показания.
Для настройки перейдите на экран VAV/СО2 и нажмите кнопку СО2 (кнопка будет неактивна, если активирован режим VAV).
Выберите тип датчика (СО2 или VOC), для которого будет выполняться регулировка скорости вентилятора (переключение может занять 5…10 секунд). Для неактивного датчика соответствующее поле будет недоступно для выбора.
Регулировка скорости производится по линейному закону, при этом пользователь может задавать желаемый уровень параметра (СО2 или VOC) с главного экрана. Скорость вентилятора задается по следующим точкам:
При установке селектора «Минимальная скорость задается с пульта» будет доступно задание минимальной скорости вентилятора с главного экрана. В этом случае скорость вентилятора не будет опускаться ниже заданной.
Контроллер вентустановки имеет три порта Modbus RTU: к одному штатно подключен пульт управления, остальные могут использоваться для подключения дополнительного оборудования (увлажнитель, датчики и т. п.), либо подключения внешнего устройства управления.
Параметры работы портов и другие регистры контроллера можно настраивать через программу JL Configurator (Windows). Для подключения к JL Configurator требуется одно из устройств: пульт TPD-283U-H с прошивкой от 7.11.09, пульт JLV135 с прошивкой от 1.2.0, адаптер BSA-02 или модуль PL307.
Карты основных регистров контроллеров:
Подробнее об этом варианте можно узнать в документе
Подключение оборудования Breezart к системе «умный дом»
Обратите внимание: это единственный вариант, который дает полный доступ к настройкам и управлению вентустановкой.
Особенность устаревших VAV систем с управлением через модули JL201 (прошивка пульта 7.09): эти модули подключены вместе со штатным пультом к порту P0, поэтому система «Умный дом» должна быть также подключена к порту Р0 вместо пульта управления. Если же VAV системой необходимо управлять как с пульта, так и через систему «Умный дом», то потребуется использовать маршрутизатор PL303 (через него к порту Р0 можно подключить до трех устройств управления). Новые VAV системы на базе модулей JL208 (прошивка пульта не ниже 7.11) управляются контроллером вентустановки, поэтому с ними такой проблемы не возникает.
Для управления вентустановкой или увлажнителем по Modbus TCP необходимо использовать модуль PL307, который работает как шлюз Modbus RTU – Modbus TCP. К одному модулю PL307 можно подключать несколько вентустановок или увлажнителей. Пульт для вентустановок с прошивкой 7.11 также поддерживает управление по Modbus TCP.
Вентустановкой Breezart для комфортной вентиляции с пультом TPD-283U-H (прошивка от 7.11.09) или пультом JLV135 (прошивка от 1.2.0) можно управлять по локальной сети из браузера с помощью XMLHttpRequest запросов (приложения на HTML + Javascript). Для обмена данными используется протокол Modbus TCP.
Управление через XMLHttpRequest запросы также используется в web-интерфейсе – вы можете подключиться к пульту, указав вместо UID его IP адрес, если компьютер и пульт находятся в одной локальной сети.
Контроллер вентустановки имеет вход типа «сухие контакты» – это два контакта, которые могут замыкать / размыкать внешние устройства (пожарная сигнализация, датчик влажности, датчик движения и другие), давая команду на включение или отключение вентустановки (при включении она будет работать в том режиме, который был ранее задан с пульта управления). Варианты настройки режима ДУ описаны в Сервисных инструкциях.
При наличии свободных портов Modbus к ним можно подключить один или два дополнительных пульта TPD-283U-H (требуется блок питания на 24В). Однако этот вариант не подходит для VAV системы с централизованным управлением, поскольку модули VAV подключаются вместе со штатным пультом к порту P0. В случае, когда свободного порта нет или же требуется управлять VAV системой, необходимо использовать маршрутизатор PL303, который позволяет подключать к одному порту до трех устройств управления. Вместо одного из пультов можно подключить адаптер BSA-02 для связи с компьютером или систему «Умный дом».